
Saloon
Салон за красота гр. Габрово
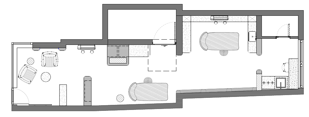
Функционално, салонът е обособен на няколко зони с различно предназначение. Срещу входа е разположена рецепция, към която има и зона за изчакване. След нея се намира и зоната за работа, която е разделена на две зони. Едната е проектирана, така че да има възможност да се превръща в самостоятелно помещение за повече уединение и фокус в работата.

Функционално разпределение
Детайли:
Квадратура 52 m²
Локация гр.Габрово
Рецепция
Стилна рецепция с нежни и осветителни акценти приветстват клиентите със стил и елегантност.


Зона за изчакване
Пред рецепцията е разположена малка зона за отдих, с меки форми и стилни линии.
Работна зона
Повтаря цялостния почерк на салона с меки форми съчетани с нежно осветление, без загуба на практичност и конфорт както за клиента така и за професионалистите.

Рецепция
Стилна рецепция с нежни и осветителни акценти приветстват клиентите със стил и елегантност.

Зона за изчакване
Пред рецепцията е разположена малка зона за отдих, с меки форми и стилни линии.

Работна зона
Повтаря цялостния почерк на салона с меки форми съчетани с нежно осветление, без загуба на практичност и конфорт както за клиента така и за професионалистите.
