
House
Kъща гр. София
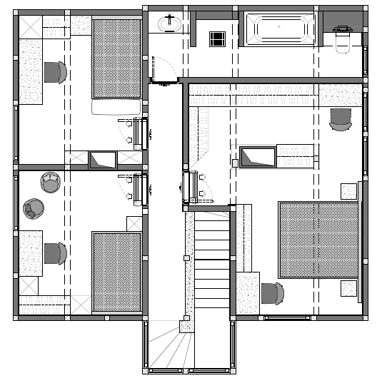
Проектът е на последен етаж от голяма еднофамилна къща, разположена в централна част на квартала. Етажът разполага със следните помещения – коридор, който ни отвежда към мастър спалня, със собствена гардеробна зона; две детски стаи – за момиче и момче; обща баня и тоалетна.

Функционално разпределение
Детайли:
Квадратура 78 m²
Локация ж.к. Триъгълника
Мастър спалня
Тук, както и в целия проект са заложени меки и топли материали и цветове. Откриваме съчетание от дървесни тонове, интегрирани в ламперии и корпусни мебели; бели тонове; акценти в зелено; огледални повърхности. Текстилната облицовка на леглото, дървесната настилка и модерните щори придават характерна изящност и уют в това пространство.


Баня
Голяма семейна баня. Проектирана с три отличителни зони, визуално отделени чрез контрастиращи цветове. Разпределението на банята е съобразено извяло с Вик проекта от строителите.
Детска стая - момче
Тя е с творчески облик и в индустриален стил, предназначена за момче тийнейджър и поради това интериора е насочен в по-тъмната гама. В нея са проектирани стилно легло със сива тапицерия и място за сядане, имащо функцията и за съхранение; функционално бюро; креативен стелаж и декоративни елементи.


Детска стая - момиче
Детската стая се откроява със светъл и свеж дизайн – хармонизиращи елементи в розово, бяло и дървени текстури, които добавят необходимата топлота в помещението. Едната стена е изцяло с тапет, който съчетава в себе си всички елементи от дизайна.
Мастър спалня
Тук, както и в целия проект са заложени меки и топли материали и цветове. Откриваме съчетание от дървесни тонове, интегрирани в ламперии и корпусни мебели; бели тонове; акценти в зелено; огледални повърхности. Текстилната облицовка на леглото, дървесната настилка и модерните щори придават характерна изящност и уют в това пространство.

Баня
Голяма семейна баня. Проектирана с три отличителни зони, визуално отделени чрез контрастиращи цветове. Разпределението на банята е съобразено извяло с Вик проекта от строителите.

Детска стая - момче
Тя е с творчески облик и в индустриален стил, предназначена за момче тийнейджър и поради това интериора е насочен в по-тъмната гама. В нея са проектирани стилно легло със сива тапицерия и място за сядане, имащо функцията и за съхранение; функционално бюро; креативен стелаж и декоративни елементи.

Детска стая - момиче
Детската стая се откроява със светъл и свеж дизайн – хармонизиращи елементи в розово, бяло и дървени текстури, които добавят необходимата топлота в помещението. Едната стена е изцяло с тапет, който съчетава в себе си всички елементи от дизайна.
