House
Къща гр. Костинброд
Тази частна къща се намира в гр. Костинброд. Тя е пример за модерен дом с нестандартна архитектура, която предоставя възможност за щедро свободно пространство и много стаи. Жилището съдържа три надземни етажа и сутерен.
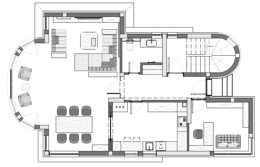
Функционално разпределение
Детайли:
Квадратура 300 м²
Локация гр. Костинброд
Всекидневна
Тази всекидневна с трапезария е облечена в така актуалния нюанс на бежово, съчетан с изящни акценти в тъмен тюркоаз, дървесни и изчистени детайли. Всяка линия и елемент са внимателно подбрани, за да създадат модерен дизайн, който създава усещане за спокойствие и хармония. Просторът на помещението излъчва уют и приветливост, като в същото време предлага функционалност и стил.
Кухня
Кухнята е разположена в отделно помещение и е изключително практична. Използвани са светъл и тъмен гранитогрес, за да има контраст със белотата на помещението. Вградените уреди и шкафове подчертават чара на тази зона, а плотът под прозореца създава допълнително пространство за почивка и питие.
Кабинет
Страхотният дизайн на този домашен кабинет предлага възможността да се съчетаят професионалните и личните моменти от живота в едно помещение, което осигурява достатъчно фокус и мисъл. Модернистичната концепция и цветова палитра от бежово, насищаща дизайнерското решение, пресъздават уютната атмосфера на това работно пространство. Елегантната конфигурация от кадифена мека мебел, практично бюро и декоративни елементи внасят характер в пространството и го превръщат в стилно професионално убежище, което има опцията да се превръща и в гостна стая.
Баня
Стилно съчетани контрастни материали са заложени в това помещение. Тъмния и светлия гранитогрес преобладават в цялото помещение, като са в хармония помежду си и очертават ясно определените зони.
Всекидневна
Тази всекидневна с трапезария е облечена в така актуалния нюанс на бежово, съчетан с изящни акценти в тъмен тюркоаз, дървесни и изчистени детайли. Всяка линия и елемент са внимателно подбрани, за да създадат модерен дизайн, който създава усещане за спокойствие и хармония. Просторът на помещението излъчва уют и приветливост, като в същото време предлага функционалност и стил.
Кухня
Кухнята е разположена в отделно помещение и е изключително практична. Използвани са светъл и тъмен гранитогрес, за да има контраст със белотата на помещението. Вградените уреди и шкафове подчертават чара на тази зона, а плотът под прозореца създава допълнително пространство за почивка и питие.
Кабинет
Страхотният дизайн на този домашен кабинет предлага възможността да се съчетаят професионалните и личните моменти от живота в едно помещение, което осигурява достатъчно фокус и мисъл. Модернистичната концепция и цветова палитра от бежово, насищаща дизайнерското решение, пресъздават уютната атмосфера на това работно пространство. Елегантната конфигурация от кадифена мека мебел, практично бюро и декоративни елементи внасят характер в пространството и го превръщат в стилно професионално убежище, което има опцията да се превръща и в гостна стая.
Баня
Стилно съчетани контрастни материали са заложени в това помещение. Тъмния и светлия гранитогрес преобладават в цялото помещение, като са в хармония помежду си и очертават ясно определените зони.
