
Apartment
Двустаен апартамент гр. София
Акцент в проекта са златните осветителни тела, които са еднотипни за целия апартамент. Полилеите осигуряват основното осветление, докато аплиците предоставят възможност за повече уединение. Златните детайли и античните фризове оформят представително и същевременно уютно помещение.

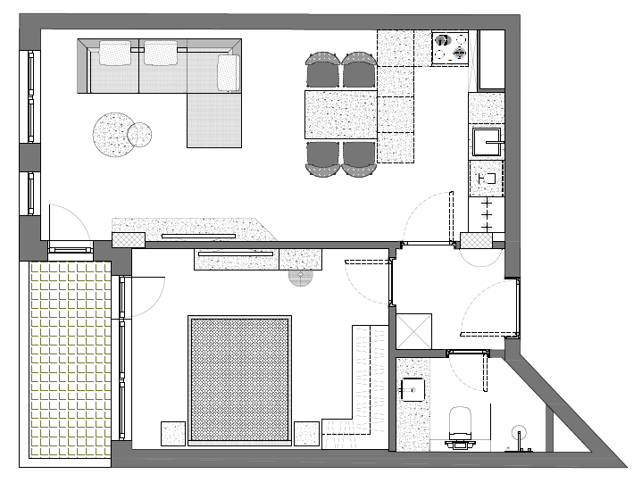
Функционално разпределение
Детайли:
Квадратура 55 m²
Локация кв. Кръстова вада
Всекидневна
Дизайнът е изграден с изчистена палитра от топли и приветливи цветове и нотки на класически форми и детайли. Подът е с естествен паркет – тип „Шеврон“ и създава топлина в помещението и визуално го разширява. Съчетава се топлината на дървесината с красотата на студения мрамор, който преобладава в кухненската част.


Баня
Банята също е в меки тонове за завършване на цялото усещане за единност в апартамента.
Мастър спалня
Спалнята е в светли тонове в контраст с дървения под. С помощта на меките тонове, тапицираното легло, дървесния под и нежните и ефирни завеси се създава усещане за уединеност и интимност.

Всекидневна
Дизайнът е изграден с изчистена палитра от топли и приветливи цветове и нотки на класически форми и детайли. Подът е с естествен паркет – тип „Шеврон“ и създава топлина в помещението и визуално го разширява. Съчетава се топлината на дървесината с красотата на студения мрамор, който преобладава в кухненската част.

Баня
Банята също е в меки тонове за завършване на цялото усещане за единност в апартамента.

Мастър спалня
Спалнята е в светли тонове в контраст с дървения под. С помощта на меките тонове, тапицираното легло, дървесния под и нежните и ефирни завеси се създава усещане за уединеност и интимност.
